今天分享的是一套一楼建筑面积140平米的北欧风三居室案例,房子位于顶层,是个跃层的户型,二楼还有一个开放式的休闲区和大露台,让人羡慕不已。整个房子在硬装上非常简洁,设计师通过精致的软装、壁纸来打造这个舒适的家。

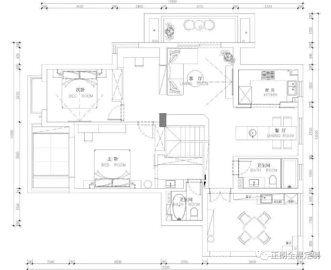
一层平面布置图

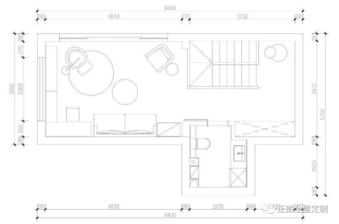
二层平面布置图

入户有个独立的小花园,走过玄关门厅之后就到了室内,利用楼梯底部的空间做了嵌入式的柜子,木质扶手加上黑色护栏显得格外精致。

在楼梯边上的就是餐厅空间,一个中央岛台和餐桌椅结合起来的餐厅,方便屋主把餐厅直接作为西厨使用。

餐厅的边上就是封闭式的中厨空间,蓝色的橱柜搭配白色的大理石墙砖和吊柜,U字型的橱柜布局也满足了厨房的收纳、使用需求。

在楼梯的另一侧是客厅空间,电视背景墙直接留白,高低不平的圆茶几搭配电视柜来满足客厅收纳需求。浅灰色的布艺沙发和蓝色、白色的条纹地毯结合起来,非常好看。

在客厅沙发背景墙的后方是一个小书房空间,墙面摆放一幅陶瓷盘的装饰画,靠着窗户做了L型的转角书桌,让可利用面积得以提升。

齐家小菜很喜欢这个主卧室的设计,床头背景墙上铺贴了浪漫的壁纸,整体以粉色系为主的设计,也让这个主卧显得精致而又优雅。

次卧的设计就会偏于素雅一些,灰色系的床搭配蓝色系的床品,墙面刷成了浅灰色,整体简洁的设计让整个卧室变得更加的沉稳。

二楼是一个开放式的休闲区,摆放沙发、茶几和书架,沙发背景墙上做了照片墙的设计,给这个休闲区增添一些艺术气息。

在休息区的外面就是大露台,露台上简单的摆放一些绿植,小编觉得再加上防晒、防雨的休闲桌椅就更好了,晒晒太阳、看看书都非常舒服。
|